CENTUB®-Röser Anschlussrohre GLM bewehrt
CENTUB®-Röser Anschlussrohre GLM bewehrt
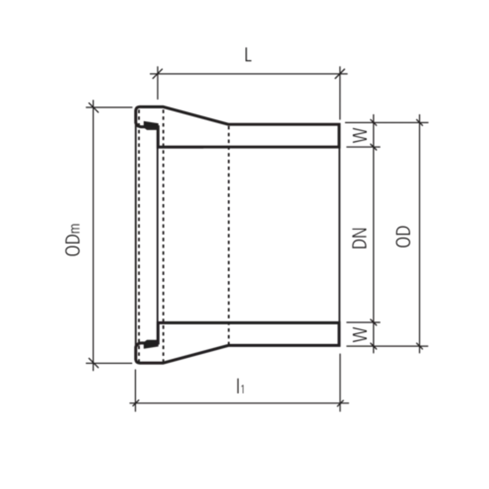
CENTUB-Röser Anschlussrohr GLM bewehrt
A0109 Art. 131223
einseitig mit Glockenmuffe und integrierter Dichtung, einseitig gerade abgelängt
Gruppe
AZ
Nennweite DN
600
Festigkeitsklasse FK
165
Länge L (mm)
600
Länge l1
690
Aussendurchmesser OD
770
Aussendurchmesser Muffe ODm
890
Wandstärke W
90
Bewehrung
bewehrt
Produktlinie
CENTUB®-Röser
HW
71, 99
Swissness
Swissness
FK 165 einseitig mit Glockenmuffe
einseitig gerade abgelängt
DN 600 L 600 mm W 90 mm
Anwendungsbereich
- Für den Anschluss von CENTUB®-Röser Rohren beim Einbau in Ortsbeton-Mauerwerke (Schächte, etc.).
Hinweis
- Für CENTUB®-Röser Rohre und Formteile gelten spezifische Lieferbedingungen. Preis auf Anfrage.
Downloads
CAD- & BIM-Downloads